How do you design an active Streetscape for a Multifamily Development?

Zang Flats Dallas, Texas

Expertise

  • Multifamily
  • Office

Size

118,000 SF
It's all about People

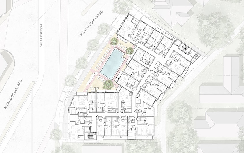
Working closely with our client, Larkspur Capital Partners, Zang Flats is unique five-story apartment community located near Lake Cliff Park. The building was designed to create a pedestrian-friendly front that provides an inviting entrance while also strategically hiding the parking deck.

  • -0
  • Hover 0

Engaging Streetscape

The building is located right off the lively intersection at Zang Boulevard with double volume height spaces that feature a work area below with mezzanine bedroom space above. We wanted to embrace the life that this neighborhood is known for and embrace the street by making it more engaging. The front doors are designed to mimic the surrounding areas that have storefronts that have been built up over time.

  • 5 Live-work Units
  • 71 Units
  • 118K Square Feet
Amenities

The building will have 71 units and will feature the current amenity trends including a pool, coworking space, a gym, a dog wash, a resident bicycle repair shop, a dedicated Uber loading zone and electric vehicle charging. Tenants can also enjoy the short walk to Lake Cliff Park.

Want to learn more about our Multifamily Projects? Contact Us

Search