How do you merge several offices into one central location?

Medecision Dallas, Texas

Expertise

  • Interiors
  • Office

Size

24,000 SF
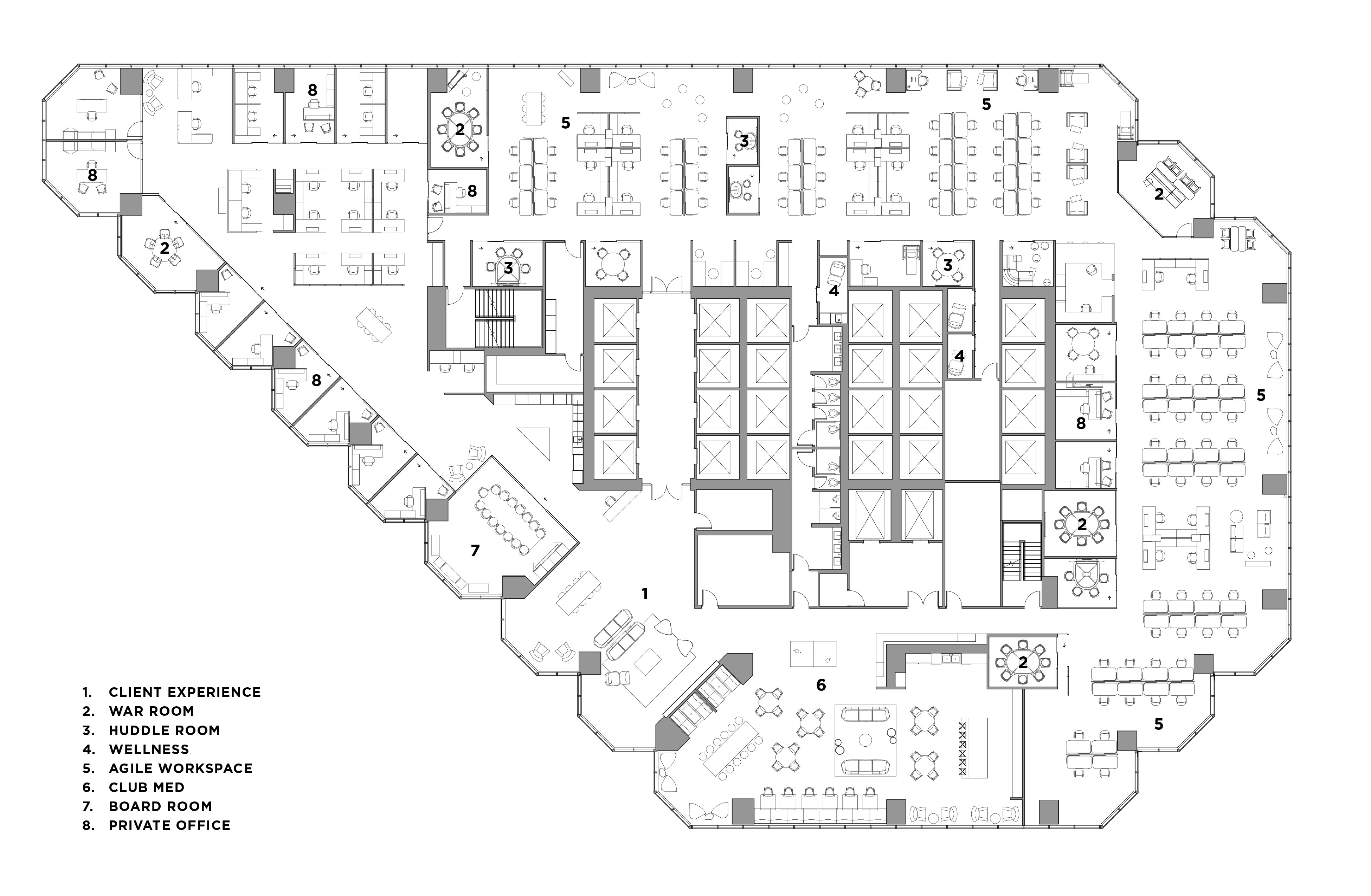
Creating a Central Location

To unify their team and culture, Medecision, a technology company changing the way patients and healthcare workers navigate the healthcare system, needed a new headquarters to consolidate multiple offices under one roof.

  • -0
  • Hover 0

A Custom Office for a Unique Company

The design team capitalized on the opportunity to foster collaboration, spark inspiration, and provide a platform for the development teams’ Agile workflow. Learning about Medecision’s culture and its objective as a company was an essential element for designing their new office space.

Branding Throughout

Medecision endeavors to liberate the world from complicated healthcare systems. Their brand takes inspiration from the simple idea of building blocks. Such a simple form can be beautiful and adapt to become whatever you need it to be. The fractal patterns emphasize modular growth, evolution, and adaptation. Upon rebranding, the idea of providing an ultimate building block to simplify the healthcare process became a central theme. This idea inspired the multifaceted and bold illustration found throughout Medecision’s branding and is also embraced and celebrated in their new headquarters.

    Club Med

    Club Med is the central hub of the office. It’s a space that serves multiple functions: break room, additional collaboration space, and auditorium space. It is bold in color, pattern, and texture, celebrating the company’s branding. The design is refined yet comfortable and acts as a home away from home for the dedicated Medecision team who often spend long hours at the office. As a health and wellness-focused company, Medecision was committed to providing a work environment that encourages mental and physical health.

    Unique Branding Opportunities

    One of the most notable features in the office is the dynamic seating element that connects Club Med to the Agile workspace and acts as a key design feature. Its shape, as well as the environmental graphics throughout the space, are derived from the fractal patterns found in the company’s branding. The bench’s exterior is wrapped in a custom white wall panel that mimics the pattern found in computer chips. The interior face of the bench is a study in tonal contrast. The signature Medecision Fuschia was chosen for its boldness, expressing energy, compassion, and joy.

    Agile Workspaces

    Medecision has fast-paced teams that are constantly changing, and need flexibility for their software developers to easily work with client teams to co-create tailored solutions in rapid sessions. Their Agile workspaces are carefully designed to support Scrum teams with moveable furniture and a dynamic floor plan, allowing teams to easily adapt their workspace to meet their goals.

Branding is a powerful tool that can define a company's culture, set goals, and underscore values. The central theme of building blocks represents the foundation of a seamless and uncomplicated healthcare network that is informed and inspired by the design team. Understanding the culture and objective of Medecision led to a bold and dynamic space.

Want to learn more about our Interiors Projects? Connect with us

Search