A bold high-rise with a welcoming charm

Four Hughes Landing The Woodlands, Texas

Expertise

  • Interiors
  • Office

Size

404,000 SF
A Modern High-Rise

Located at the Howard Hughes campus in The Woodlands, this building sits in a row next to three existing office buildings. The 15-story tower is adjacent to a water feature that will be an amenity for the office tenants and provide scenic views for the tower. The building’s orientation is angled to take full advantage of the water feature and the neighboring lake. The client desired all the attributes that make a project great and iconic, and our team has done just that.

Feels Like Home

The building is designed to feel like you have entered a welcoming living room, tenants and visitors will never feel as though they have stepped into a cold and boring office building. Another outdoor living room is located on a deck overlooking the lake. Together, these amenities create a comfortable and relaxing environment for tenants and visitors alike. The ground floor will also include a fitness center.

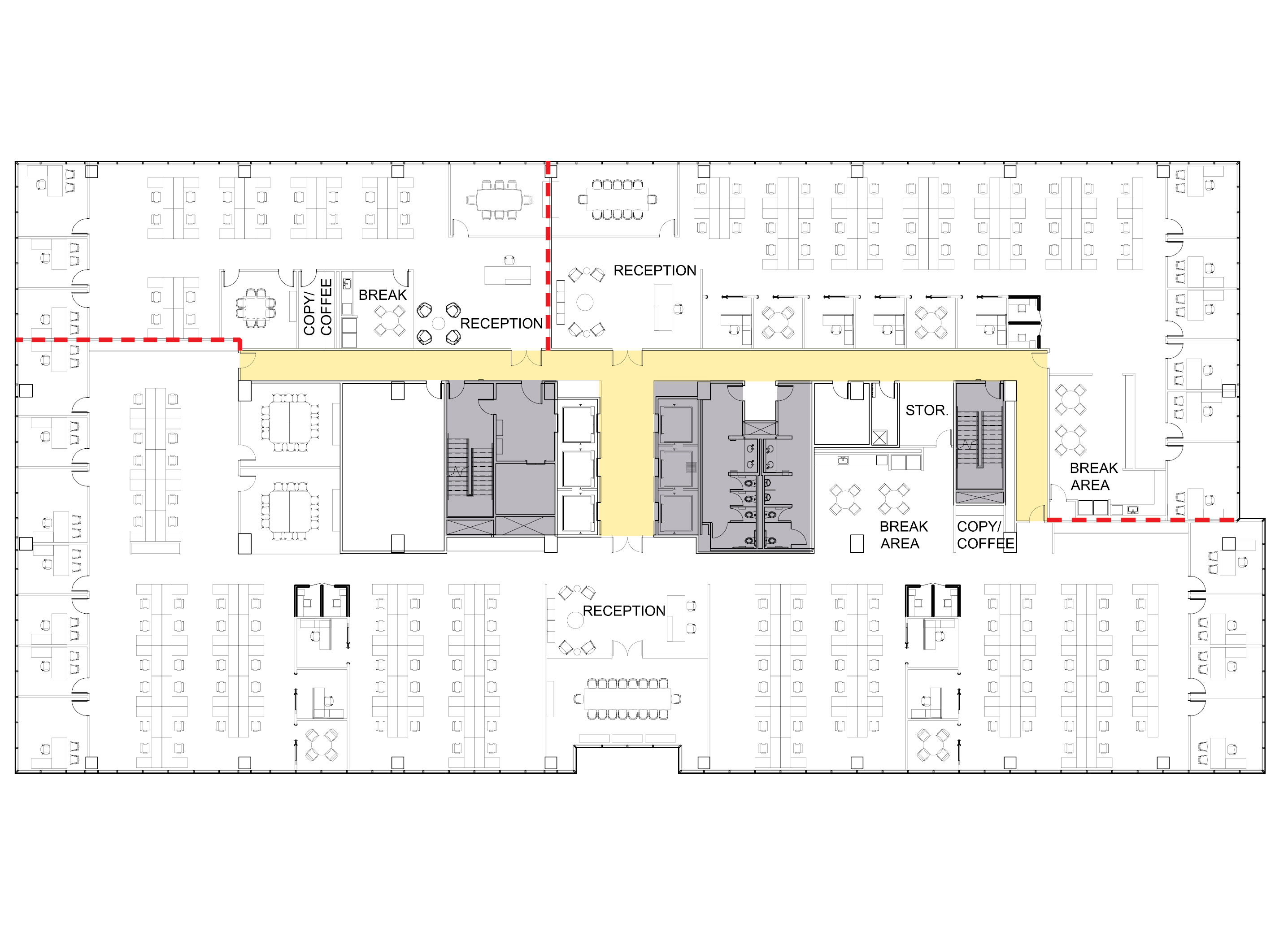
Floor Plan Options
  • Multi-Tenant Floor Plan
  • Single Tenant with High Density
  • Single Tenant with Private Offices

Each level of office space has a 13’-6” floor-to-floor height and a floor-to-ceiling dimension of 9’-0”. The tower will have six elevators that service all floors, and two fire service elevators (one service + one swing) that also serves all levels.

Search